Besoin d’avoir les idées claires ou simplement budgétiser votre projet ? Découvrez l’étude Proarchitecte avec une projection en 3D sur plans
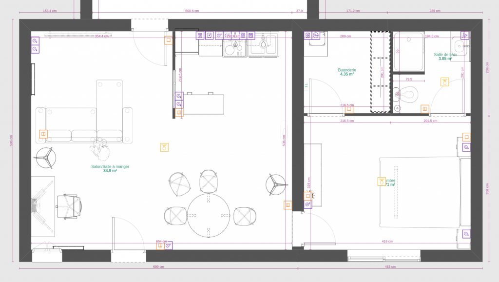
Plans 2D sur mesure et câblage éléctrique

Toutes les mesures sont prises sur place et reportées sur le plan 2D, l’agencement du mobilier se fait sur demande via formulaire en ligne.


